メインステージ押上Ⅴ
up
1101 1LDK 17.2万円
更新日:2026-02-02
- 賃料
-
17.2万円
- マンション
- 間取
-
1LDK
- 共益費・管理費
- 15,000円
- 敷金
- 0ヶ月
- 礼金
- 1ヶ月
|
|
|
|
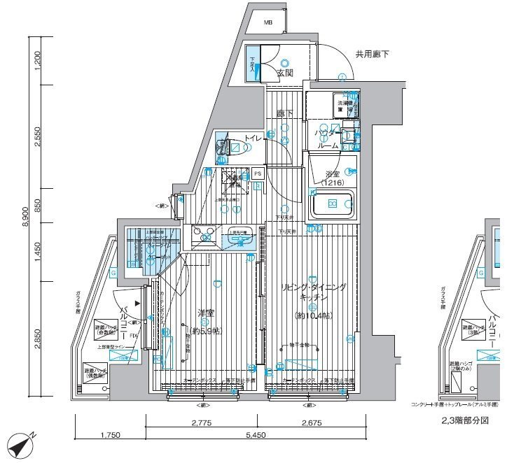
間取り図
物件画像
初期費用
| 家賃 | 敷金 | 礼金 | 仲介手数料 | ||
|---|---|---|---|---|---|
| 172,000円 | 0ヶ月 | 1ヶ月 | - | ||
|
※1.上記の初期費用には火災保険・カギ交換・保証会社利用料は含まれておりません。 ※2.こちらの初期費用計算は概算となっております。詳しい初期費用に関してはお問い合わせください。 |
|||||
物件詳細
物件説明 |
|---|
|
東武亀戸線『曳舟駅』徒歩5分 「メインステージ押上Ⅴ」の物件ページです。
敷金0ヶ月、 -向き、 広さ41.3㎡のお部屋です。 更新日:2026-02-02 |
| 所在地 | 東京都墨田区東向島1-27-8 |
|---|---|
| 交通 |
| 築年月 | 2018年9月 | 面積 | 41.3㎡ |
|---|---|---|---|
| 建物階数 | 地上12階 | 部屋階数 | 11階 |
| 部屋 / 区画番号 | 1101 | 総戸 / 区画数 | |
| 向き | -向き | 駐車場 | お問い合わせください。 |
| 建物構造 | SRC | ||
| 間取 | 1LDK |
||
| 引渡 / 入居時期 | 相談 | 取引態様 | 仲介 |
| 建物特徴 | 都市ガス、タイル貼り | ||
| 建物設備 | オートロック、エレベータ、宅配ボックス、駐輪場、ゴミ集積場、防犯カメラ | ||
| 部屋設備 | ペット相談、分譲賃貸、角部屋、インターネット無料、バス・トイレ別、シャワー、ガスコンロ設置可、コンロ2口以上、システムキッチン、ウォークインクローゼット、室内洗濯機置場、CSアンテナ、BSアンテナ、光ファイバー、TVインターホン、温水洗浄暖房便座、独立洗面台、クローゼット、シューズボックス、照明器具 | ||
| URL | 「メインステージ押上Ⅴ」の詳細情報はこちら | ||
| 状態 | 空き有り | ||
他の部屋情報
| 部屋 | 間取 | 面積 | 家賃 | 管理費 | 敷金 | 礼金 | 詳細 |
|---|
メインステージ押上Ⅴ へのお問い合せはプロパティバンクまで
物件マップ
※物件掲載内容と現況に相違がある場合は現況を優先と致します。
このページについて
このページは
「 メインステージ押上Ⅴ 」 の詳細情報です。
