FRC梅屋敷
up
503 1R 8.4万円
更新日:2026-03-19
- 賃料
-
8.4万円
- マンション
- 間取
-
1R
- 共益費・管理費
- 5,000円
- 敷金
- 0ヶ月
- 礼金
- 1ヶ月
|
|
|
|
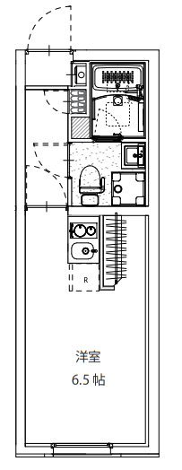
間取り図
物件画像
初期費用
| 家賃 | 敷金 | 礼金 | 仲介手数料 | ||
|---|---|---|---|---|---|
| 84,000円 | 0ヶ月 | 1ヶ月 | - | ||
|
※1.上記の初期費用には火災保険・カギ交換・保証会社利用料は含まれておりません。 ※2.こちらの初期費用計算は概算となっております。詳しい初期費用に関してはお問い合わせください。 |
|||||
物件詳細
物件説明 |
|---|
|
京急本線『梅屋敷駅』徒歩8分 「FRC梅屋敷」の物件ページです。
敷金0ヶ月、 南東向き、 広さ19.38㎡のお部屋です。 更新日:2026-03-19 |
| 所在地 | 東京都大田区大森西7丁目-6-10 |
|---|---|
| 交通 |
| 築年月 | 2025年3月 | 面積 | 19.38㎡ |
|---|---|---|---|
| 建物階数 | 地上5階 | 部屋階数 | 5階 |
| 部屋 / 区画番号 | 503 | 総戸 / 区画数 | |
| 向き | 南東向き | 駐車場 | お問い合わせください。 |
| 建物構造 | SRC | ||
| 間取 | 1R |
||
| 引渡 / 入居時期 | 相談 | 取引態様 | 仲介 |
| 建物特徴 | 都市ガス | ||
| 建物設備 | オートロック、宅配ボックス、防犯カメラ | ||
| 部屋設備 | 角部屋、バス・トイレ別、IHクッキングヒーター、コンロ2口以上、室内洗濯機置場、TVインターホン、温水洗浄暖房便座、クローゼット、シューズボックス | ||
| URL | 「FRC梅屋敷」の詳細情報はこちら | ||
| 状態 | 空き有り | ||
他の部屋情報
| 部屋 | 間取 | 面積 | 家賃 | 管理費 | 敷金 | 礼金 | 詳細 |
|---|
FRC梅屋敷 へのお問い合せはプロパティバンクまで
物件マップ
※物件掲載内容と現況に相違がある場合は現況を優先と致します。
このページについて
このページは
「 FRC梅屋敷 」 の詳細情報です。
