リバーポイントタワー
up
1308 1LDK 38.3万円
更新日:2026-03-19
- 賃料
-
38.3万円
- マンション
- 間取
-
1LDK
- 共益費・管理費
-
-
|
- 敷金
-
1ヶ月
- 礼金
-
1ヶ月
|
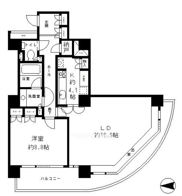
間取り図
物件画像
初期費用
| 家賃 |
敷金 |
礼金 |
仲介手数料 |
| 383,000円 |
1ヶ月 |
1ヶ月 |
- |
※1.上記の初期費用には火災保険・カギ交換・保証会社利用料は含まれておりません。
※2.こちらの初期費用計算は概算となっております。詳しい初期費用に関してはお問い合わせください。
|
物件詳細
物件説明
|
東京メトロ有楽町線『月島駅』徒歩6分 「リバーポイントタワー」の物件ページです。
敷金1ヶ月、
北西向き、
広さ72.69㎡のお部屋です。
更新日:2026-03-19 |
| 築年月 |
1989年4月 |
面積 |
72.69㎡ |
| 建物階数 |
地上40階(地下2階) |
部屋階数 |
13階 |
| 部屋 / 区画番号 |
1308 |
総戸 / 区画数 |
|
| 向き |
北西向き |
駐車場 |
お問い合わせください。 |
| 建物構造 |
重量鉄骨 |
| 間取 |
1LDK
|
| 引渡 / 入居時期 |
相談 |
取引態様 |
仲介 |
| 建物特徴 |
駐車場 |
| 建物設備 |
オートロック、エレベータ、駐輪場、防犯カメラ、ゴミ集積場 |
| 部屋設備 |
角部屋、バス・トイレ別、IHクッキングヒーター、システムキッチン、追い焚き、CATV、CSアンテナ、BSアンテナ、光ファイバー、温水洗浄暖房便座、浴室換気乾燥機、独立洗面台、食器洗い乾燥機 |
| URL |
「リバーポイントタワー」の詳細情報はこちら
|
| 状態 |
空き有り |
他の部屋情報
| 部屋 |
間取 |
面積 |
家賃 |
管理費 |
敷金 |
礼金 |
詳細 |
| 1305 |
1LDK |
72.69㎡ |
344,000円 |
- |
1ヶ月 |
1ヶ月 |
詳細はこちら |
| 3310 |
2LDK |
77.19㎡ |
425,000円 |
- |
1ヶ月 |
1ヶ月 |
詳細はこちら |
| 3303 |
2LDK |
75.88㎡ |
395,000円 |
- |
1ヶ月 |
1ヶ月 |
詳細はこちら |
| 2005 |
1LDK |
72.69㎡ |
351,000円 |
- |
1ヶ月 |
1ヶ月 |
詳細はこちら |
| 3206 |
3LDK |
86.84㎡ |
483,000円 |
- |
1ヶ月 |
1ヶ月 |
詳細はこちら |
| 1812 |
2LDK |
81.2㎡ |
428,000円 |
- |
1ヶ月 |
1ヶ月 |
詳細はこちら |
| 1704 |
1LDK |
58.46㎡ |
294,000円 |
- |
1ヶ月 |
1ヶ月 |
詳細はこちら |
物件マップ
※物件掲載内容と現況に相違がある場合は現況を優先と致します。
このページについて
このページは
「 リバーポイントタワー 」 の詳細情報です。