グランディオール広尾テラス
up
203 1R 12.5万円
更新日:2026-04-02
- 賃料
-
12.5万円
- マンション
- 間取
-
1R
- 共益費・管理費
- 10,000円
- 敷金
- 1ヶ月
- 礼金
- 1ヶ月
|
|
|
|
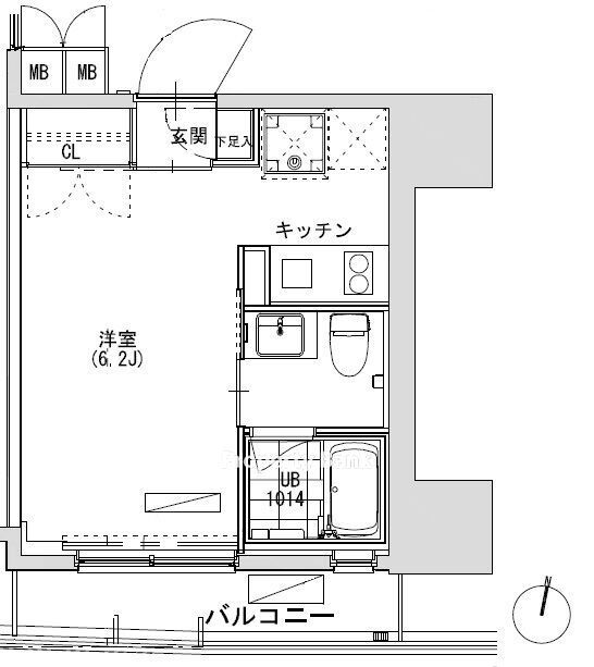
間取り図
物件画像
初期費用
| 家賃 | 敷金 | 礼金 | 仲介手数料 | ||
|---|---|---|---|---|---|
| 125,000円 | 1ヶ月 | 1ヶ月 | - | ||
|
※1.上記の初期費用には火災保険・カギ交換・保証会社利用料は含まれておりません。 ※2.こちらの初期費用計算は概算となっております。詳しい初期費用に関してはお問い合わせください。 |
|||||
物件詳細
物件説明 |
|---|
|
山手線『恵比寿駅』徒歩9分 「グランディオール広尾テラス」の物件ページです。
敷金1ヶ月、 北向き、 広さ20.09㎡のお部屋です。 更新日:2026-04-02 |
| 所在地 | 東京都渋谷区広尾1-10-3 |
|---|---|
| 交通 |
| 築年月 | 2013年3月 | 面積 | 20.09㎡ |
|---|---|---|---|
| 建物階数 | 地上13階 | 部屋階数 | 2階 |
| 部屋 / 区画番号 | 203 | 総戸 / 区画数 | |
| 向き | 北向き | 駐車場 | お問い合わせください。 |
| 建物構造 | SRC | ||
| 間取 | 1R |
||
| 引渡 / 入居時期 | 相談 | 取引態様 | 仲介 |
| 建物特徴 | 駐車場 | ||
| 建物設備 | オートロック、エレベータ、宅配ボックス、駐輪場、防犯カメラ | ||
| 部屋設備 | バス・トイレ別、ガスコンロ設置可、システムキッチン、CATV、CSアンテナ、BSアンテナ、フローリング、光ファイバー、TVインターホン、温水洗浄暖房便座、浴室換気乾燥機、独立洗面台 | ||
| URL | 「グランディオール広尾テラス」の詳細情報はこちら | ||
| 状態 | 空き有り | ||
他の部屋情報
| 部屋 | 間取 | 面積 | 家賃 | 管理費 | 敷金 | 礼金 | 詳細 |
|---|
グランディオール広尾テラス へのお問い合せはプロパティバンクまで
物件マップ
※物件掲載内容と現況に相違がある場合は現況を優先と致します。
このページについて
このページは
「 グランディオール広尾テラス 」 の詳細情報です。
